


VALEN | Novostavba 4 izbového domu v štvrti Ekoosada
Predaj, Veľké Úľany
Ulica: | Sliačska |
---|---|
Mestská časť: | Vinohrady |
Obec: | Bratislava-Nové Mesto |
Okres: | Bratislava III |
Kraj: | Bratislavský kraj |
Druh: | Domy |
Typ: | Predaj |
Typ domu: | Rodinný dom |
Iné: |
Realitná kancelária VALEN ponúka exkluzívne na predaj výnimočné luxusné vily nachádzajúce sa v jednej z najlukratívnejších lokalít na Sliačskej ulici v Bratislave – Koliba, časť Ahoj. Tieto trojpodlažné rezidencie ponúkajú výnimočnú kombináciu nadčasovej architektúry, moderných technológii a veľkorysého priestoru, ktorý uspokojí aj tých najnáročnejších klientov.
VIRTUÁLNA PREHLIADKA - VILA 1 - https://my.matterport.com/show/?m=gjvumDWwJDu
VIRTUÁLNA PREHLIADKA - VILA 2 - https://my.matterport.com/show/?m=RiXRCz5S3c6
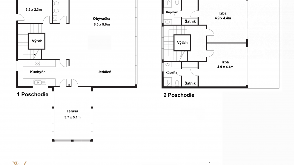
Vily sú zasadené do svahov Koliby a disponujú 3 podlažiami prepojenými vlastným výťahom. Orientácia víl je na juhovýchod čo zabezpečuje okúzľujúci výhľad z priestrannej terasy. Každá z víl disponuje 5 izbami, 3 kúpeľňami, technickou miestnosťou a dvojgarážou. Milovníci módy určite ocenia 3 priestranné šatníky. Vily sa nachádzajú na súkromnej ulici so šiestimi domami, s prístupom zabezpečeným vstupnou bránou na diaľkove ovládanie.
Okolie oboch domov je dotiahnute do najmenšieho detailu krásnou výsadbou, či už ide o trávnik, trvalé rastliny a stromy. Samozrejmosťou je aj automatické zavlažovanie.
VILA 1 DISPOZÍCIA:
Úžitková plocha tejto vily je o výmere 383m2. Vila stoji na pozemku o celkovej výmere 482m2 a k nemu prislúcha aj spoločná príjazdová komunikácia pre obe Vily o výmere 220m2.
VILA 2 DISPOZÍCIA:
Úžitková plocha nižšie položenej vily je o výmere 403m2. Vila stoji na pozemku o celkovej výmere 578m2 a k nemu prislúcha aj spoločná príjazdová komunikácia pre obe Vily o výmere 220m2.
ZARIADENIE: Nehnuteľnosti sa predávajú v stave holodom, čo novému majiteľovi poskytuje jedinečnú príležitosť dokončiť interiér podľa vlastných predstáv a štýlu. V rámci technického štandardu je objekt vybavený podlahovým kúrením, predprípravou na klimatizáciu, exteriérovými žalúziami, fotovoltaickými panelmi, tepelným čerpadlom, filtráciou vody, ako aj centrálnym vysávačom, inteligentnou elektroinštaláciou značky HOMIO, vyhrievanou prístupovou komunikáciou a predprípravou na bazén. Každa vila disponuje vlastným výťahom, čo zvyšuje komfort bývania na maximum. Pre zaistenie bezpočnosti nechýbaju ani bezpečnostné systémy a kamery.
LOKALITA: Vily sa nachádzajú v prestížnej časti Bratislavy - AHOJ, v slepej a súkromnej ulici s minimálnou premávkou. Táto lokalita je známa svojou pokojnou atmosférou, množstvom zelene a výbornou dostupnosťou do centra mesta.
V bezprostrednej blízkosti sa nachádzajú rekreačné oblasti Malých Karpát, vrátane Kamzíka, Železnej studničky a Koliby, ktoré ponúkajú výborné podmienky na aktívny oddych, cykloturistiku a prechádzky v prírode. V okolí sú tiež medzinárodné školy a všetka občianska vybavenosť dostupná do niekoľkých minút autom.
Lokalita ideálna pre tých, ktorí hľadajú komfortné a nadštandardné bývanie v súkromí a zároveň blízko centra mesta.
Cena: V RK
© Text a fotografie sú autorským dielom a majetkom realitnej kancelárie VALEN.
Kontaktná osoba: Ing. Dušan Baňacký - +421 940 505 000
CEO