Používame cookies

Súbory cookie a ďalšie technológie sledovania používame na zlepšenie vášho zážitku z prehliadania našich webových stránok, na to, aby sme vám zobrazovali prispôsobený obsah a cielené reklamy, na analýzu návštevnosti našich webových stránok a na pochopenie toho, odkiaľ naši návštevníci prichádzajú. Viac info

 

VALEN | Pokojné bývanie v Ružinove s výbornou dostupnosťou

Mestská časť: Pošeň
Obec: Bratislava-Ružinov
Okres: Bratislava II
Kraj: Bratislavský kraj
Druh: Byty
Typ: Predaj
Typ bytu: 2-izbový byt
Iné:
249 900 €

Popis nehnuteľnosti

Objavte príjemné mestské bývanie v skvelej lokalite. Zeleň, skvelá občianska vybavenosť a výborná infraštruktúra robia z tejto lokality ideálne miesto pre život.

VIRTUÁLNA PREHLIADKA: https://my.matterport.com/show/?m=R86Fwnok8mv

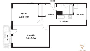
BYT: Úžitková plocha bytu je 60,22 m2, nachádza sa na 7. poschodí z 8 zrekonštruovaného bytového domu s výťahom a je orientovaný na 2 svetové stranyVýchod a Západ. Nového majiteľa určite poteší balkón o rozlohe 2,46 m2 a pivničná kobka o výmere 1,34 m2, ktorá sa nachádza na medziposchodí len pár krokov od bytu. Byt prešiel kompletnou, staršou rekonštrukciou, vrámci ktorej boli okrem iného vymenené tiež elektrické rozvody

ZARIADENIE: Byt sa predáva zariadený tak, ako je znázornené na fotografiách. Novým majiteľom bude k dispozícií kuchynská linka so spotrebičmi (plynový sporák, el. rúra, chladnička s mrazničkou a mikrovlnná rúra), práčka, vstavaná skriňa vo vstupnej hale a v spálni, manželská posteľ, gauč, ako aj ďalší nábytok v izbách. 

DISPOZÍCIA: Tento praktický 2i byt má výborné dispozičné riešenie. Zo vstupnej haly je vstup do kúpeľne s WC, 2 samostatných nepriechodných izieb a do oddelenej kuchyne s jedálenskou časťou. Výstup na balkón je z obývacej izby. Dispozícia poskytuje viaceré možnosti prípadných úprav, v závislosti od želaní nového majiteľa/-ky.

BYTOVÝ DOM:  Bytový dom prešiel kompletnou rekonštrukciou, vrámci ktorej boli vymenené rozvody a stúpačky, zrenovovaná fasáda bytového domu, osadený nový výťah a vstupná brána na čip. Na každom poschodí sa nachádzajú len 3 byty, čo umocňuje pokojnú atmosféru a zlepšuje komfort bývania.

LOKALITA:  Byt na Štefunkovej ulici v mestskej časti Ružinov ponúka spojenie príjemného mestského bývania s množstvom zelene a výbornej občianskej vybavenosti. V bezprostrednom okolí sa nachádzajú viaceré materské, základné školy a stredné školy, detské ihriská, športoviská, zdravotnícke zariadenia, lekárnepotraviny (Kraj a Terno), ako aj rôzne ďalšie služby každodennej potreby. V pešej dostupnosti sú viaceré supermarkety (Lidl, Billa a TESCO), menšie obchody, kaviarne a reštaurácie, ktoré zabezpečujú pohodlný mestský život bez nutnosti dlhého presúvania.

Milovníci oddychu a aktívneho životného štýlu ocenia blízkosť parkov a zelených plôch, ktoré vytvárajú priestor na prechádzky, šport či relax. Lokalita disponuje vynikajúcou dopravnou infraštruktúroudostupnosťou MHD, vďaka čomu je centrum Bratislavy dostupné v priebehu niekoľkých minút. Veľkou výhodou je bezproblémové napojenie na hlavné dopravné ťahy mesta a diaľničný obchvat, čo umožňuje rýchle spojenie do ostatných častí Bratislavy aj mimo mesta.

Táto lokalita patrí dlhodobo medzi najobľúbenejšie a najvyhľadávanejšie mestské časti vďaka kombinácii pokojného a bezpečného prostredia, výbornej dopravnej infraštruktúry a skvelej občianskej vybavenosti, čo z nej robí ideálne miesto pre komfortné mestské bývanie aj perspektívnu investíciu.

CENA: 249.900€

V cene je započítaná aj provízia pre realitnú kanceláriu, ktorá zahŕňa právny servis zabezpečovaný advokátskou kanceláriou, úhradu základného správneho poplatku na katastri, poradenstvo k prevodu nehnuteľnosti a bezplatnú ponuku financovania prostredníctvom hypotéky.

© Text a fotografie sú autorským dielom a majetkom realitnej kancelárie VALEN.

Kontaktná osoba: Ing. Maroš Malý – 0917 668 887

Vlastnosti

Status:
aktívne
Vlastníctvo:
osobné
Úžitková plocha:
60.22 m2
Zastavaná plocha:
64.02 m2
Podlahová plocha:
61.56 m2
Skladová plocha:
1.34 m2
Stav:
úplne prerobený
Počet izieb:
2
Typ výbavy:
kompletne vybavený
Balkón:
áno
Pivnica:
áno
Výťah:
áno
Rok výstavby:
1959
Pozícia:
vyššie poschodie
Poschodie:
7
Celková plocha:
64.02 m2
Plocha balkóna:
2.46 m2
Počet balkónov:
1
Pivnica plocha:
1.34 m2
Počet pivníc:
1
Orientácia:
západ
Vykurovanie - centrálne:
áno
Internet:
áno
Optická sieť:
áno
Status:
aktívne
Vlastníctvo:
osobné
Úžitková plocha:
60.22 m2
Zastavaná plocha:
64.02 m2
Podlahová plocha:
61.56 m2
Skladová plocha:
1.34 m2
Stav:
úplne prerobený
Počet izieb:
2
Typ výbavy:
kompletne vybavený
Balkón:
áno
Pivnica:
áno
Výťah:
áno
Rok výstavby:
1959
Pozícia:
vyššie poschodie
Poschodie:
7
Celková plocha:
64.02 m2
Plocha balkóna:
2.46 m2
Počet balkónov:
1
Pivnica plocha:
1.34 m2
Počet pivníc:
1
Orientácia:
západ
Vykurovanie - centrálne:
áno
Internet:
áno
Optická sieť:
áno

Virtuálna prehliadka

 

Informatívna úverová kalkulačka

Pozrieť na mape

Maklér

Ing. Maroš Malý

Ing. Maroš Malý

Hypotekárny a realitný špecialista

  • Slovensky
  • Česky
  • English
  • Deutsch

Radi Vám poradíme

Podobné nehnuteľnosti